Get Started
Dismantling Joint

Size Range:DN65-DN2000

Pressure: PN6/10/16

Body Material:Q235

Get a Quote
Product Technical Catalogue
Product advantages
Parameters

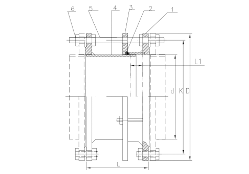
24-3.png


Parameter Information 

1.Standard:

ItemDesign and maufacureFace to FaceTesting PressureFlange
StandardGB/T 12456-2002GB/T 12456-2002GB/T 12456-2002GB/T 12456-2002/EN1092-1


2. Material of Main Parts:

Name1-Body2-Sealing ring3-Gland4-Limit expansion pipe
MaterialQ235EPDMQ235Q235-A


3. Dimensions:

SizePN6/10/16PN6PN10PN16
DNNPSLL1(Compensation Dosage)ΦDΦKΦdΦDΦKΦdΦDΦKΦd
652-1/2''20020160130110185145122185145122
803''20020190150128200160138200160138
1004''20020210170148220180158220180158
1255''20020240200178250210188250210188
1506''20020265225202285240212285240212
2008''20020320280258340295268340295268
25010''20020375335312395350320405355320
30012''22025440395365445400370460410378
35014''22025490445415505460430520470438
40016''22025540495465565515482580525490
45018''22025595550520615565532640585550
50020''22025645600570670620585715650610
60024''24025755705670780725685840770725
70028''24025860810775895840800910840795
80032''3503097592088010159509051025950900
90036''3503010751020980111510501005112510501000
100040''35030117511201080123011601110125511701115
120048''37030140513401259145513801330148513901330
140056''37030163015601510167515901535168515901530
160064''38030183017601710191518201760193018201750
180072''380/40030204519701920211520201960213020201950
200080''40030226521802125232522302170234522302150