Get Started
Stainless Steel Gate Valve

Size Range:DN50-DN400

Pressure: PN16/150LB

Body Material:CF8

Seat Material:CF8/Alloy Steel

Disc Material:CF3/CF3M/CF8/CF8M

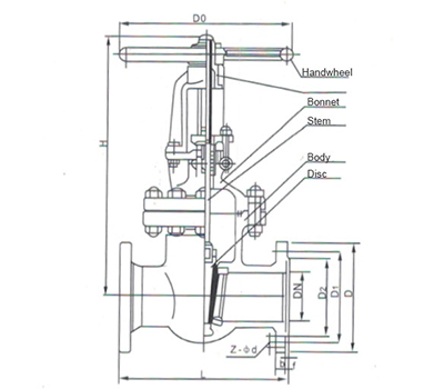
Stem Material:2Cr13/ SS304/SS316

Features: Water treatment, petrochemical, food and medicine, electric energy, metallurgy, etc.

Get a Quote
Product advantages

1. Precision casting valve body, smooth appearance, 2 times shot blasting after appearance processing, no trachoma.

2. CNC lathe processing of internal parts, guaranteed accuracy.

3. Heavy type valve body.

4. Inverted seal treatment of contact surface between bonnet and stem to avoid leakage.

5. The corrosion resistance was improved due to the body adopt pickling passivation treatment.

6. Each valve will be inspected for shell and seal pressure before leaving factory.

Parameters

350.jpg

  

 Parameter Information:

1. Executive standard:

NameDesign Face to FacePressure TestConnect  Flange
Reference standardGB/T 12234/API 600GB/T 12221/ASME B16.10GB/T 13927/API 598JB/T 79/ASME B16.5


2. Material of Main Parts:

NameBodyDiscStemSeatHandwheel
MaterialCF8CF8SS304SS304DI


3. Dimensions:

DNPN16150LB
DNNPS(英寸)LDD1Z-ΦdLDD1Z-Φd
50 2''2501601254-18178152120.54-19
65 2  1/2''2651801454-18190178139.54-19
80 3''2801951608-18203190152.54-19
100 4''3002151808-18229229190.58-19
125 5''3252452108-182542542168-22
150 6''3502802408-22267279241.58-22
200 8''40033529512-22292343298.58-22
250 10''45040535512-2633040636212-25
300 12''50046041012-2635648343212-25
35014''55052047016-2638153347612-29
40016''60058052516-3040659754016-29